Τα προσφυγικά της Λεωφόρου Αλεξάνδρας
20 Οκτωβρίου 2021
Τα προσφυγικά της Λεωφόρου Αλεξάνδρας είναι μια σειρά εμβληματικών κτηρίων μεγάλης σημασίας από την εποχή που χτίστηκαν μέχρι και σήμερα. Τη δεκαετία του ’30 ανεγείρονται και καλούνται να στεγάσουν τους ξεριζωμένους της Μικρασιατικής Καταστροφής. Πληγώνονται από σφαίρες κατά τη διάρκεια των Δεκεμβριανών. Φαντάζουν σχεδόν «πολυτελή», πλάι στις προσφυγικές παραγκουπόλεις που τα περιτριγυρίζουν μέχρι και τη δεκαετία του ’60. Γίνονται πεδίο αντικρουόμενων συμφερόντων στα τέλη του 20ου αιώνα. Γίνονται σύμβολο του αιτήματος ανάδειξης της ιστορικής μνήμης και προστασίας της σύγχρονης αρχιτεκτονικής κληρονομιάς, αλλά και σύμβολο «ριζώματος» – από το 2000 και μέχρι σήμερα.

Πλήθος κόσμου στα προσφυγικά της Λεωφόρου Αλεξάνδρας την περίοδο των Δεκεμβριανών
Η αρχιτεκτονική στα προσφυγικά της Λεωφόρου Αλεξάνδρας
Τα προσφυγικά της Λεωφόρου Αλεξάνδρας χτίζονται μεταξύ 1933 και 1935 – σε συνέχεια και άλλων προσφυγικών συγκροτημάτων. Είναι το διάστημα εκείνο που οι επιρροές του Μοντερνισμού είναι εμφανείς στην Ελληνική Αρχιτεκτονική, ενώ συζητείται έντονα η λύση της «πολυκατοικίας» στο Αθηναϊκό στεγαστικό ζήτημα. Η επιλογή της ανέγερσης των Προσφυγικών, μάλιστα, χαιρετίζεται κατά το 4ου CIAM (Διεθνές Συνέδριο Νεώτερης Αρχιτεκτονικής) . (Γεωργακοπούλου, 2003)
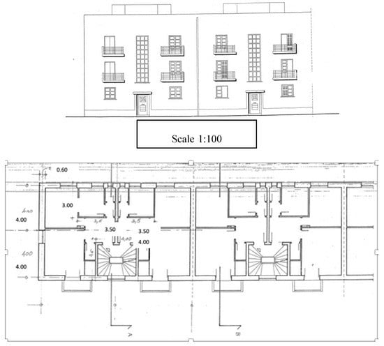
Πρόκειται για ένα συγκρότημα 8 πολυκατοικιών και 228 διαμερισμάτων, εμβαδού περίπου 45 τ.μ. (Ντινιακός, 2007) Σχεδιάστηκαν από τους Κ. Λάσκαρι και Δ. Κυριακό, υπαλλήλους της Τεχνικής Υπηρεσίας του Υπουργείου Πρόνοιας (Τ.Υ.Υ.Π.). Πρόκειται για αυστηρά ωφελιμιστικά κτίρια που εμπίπτουν στο στιλ του γερμανικού φονξιοναλισμού. (Φιλιππίδης, 1984) Απλές παραλληλεπίπεδες κατασκευές από πλάκες μπετόν αρμέ και επιχρισμένη λιθοδομή «χωρίς ίχνος διακόσμησης ή άλλης παραχώρησης σε πλαστικές αναζητήσεις». (Ψηφιακή Σελίδα της Αρχαιολογίας της Πόλης των Αθηνών) Οι επιρροές του Bauhaus είναι επίσης εμφανείς (Ντινιακός, 2007) : Βλέπουμε ένα σύνολο όπου η μορφή ακολουθεί τη λειτουργία, κατά το λιτό Μοντερνιστικό πνεύμα των καιρών. (Πετρίδου & Ζιρώ, 2015). Αν και η συντήρηση του συγκροτήματος είναι ανεπαρκής, διακρίνεται ακόμα η «γεωμετρική διαύγεια» και η «πρωτοποριακή τολμηρότητα» (Φιλιππίδης, 1984). Το συγκρότημα επιλέχθηκε στην έκθεση Ελληνικής Αρχιτεκτονικής της Φρανκφούρτης ως ένα από τα σημαντικότερα Ελληνικά έργα του 20ου αιώνα. (Ντινιακός, 2007)

Όψεις και κατόψεις διαμερισμάτων (πηγή: αρχείο Αρχιτεκτονικής Σχολής ΕΜΠ)
Η κάθε πολυκατοικία 30 διαμερισμάτων κόστισε 2.500.000 δραχμές. (Βλάχου, Γιαννίτσαρη, Χατζηκώστα, 1978) Όλες οι πολυκατοικίες είναι τριώροφες. Οι 4 μπροστινές έχουν σχεδιαστεί από τον Κυριακό και περιλαμβάνουν οικίες με 2 δωμάτια, κουζίνα και αποχωρητήριο. Οι 4 υπόλοιπες οικοδομήθηκαν σε σχέδια Λάσκαρι και αποτελούνται από 1 δωμάτιο, κουζίνα και αποχωρητήριο. Σε όλες τις περιπτώσεις, υπάρχουν πλυντήρια στην ταράτσα ανά τρία διαμερίσματα και κλιμακοστάσια ανά 6 διαμερίσματα. (Φιλιππίδης, 1984) (Κωνσταντοπούλου, 1985) Επρόκειτο για πρότυπα αερισμού και ηλιασμού. Η παροχή ηλεκτρικού ρεύματος και νερού τις καθιστούν ιδιαίτερα «σύγχρονες» για την εποχή τους. (Παπανδρέου, 2011)
Οι νέοι κάτοικοι επεμβαίνουν στο χώρο
Ωστόσο, η ανάγκη για επιπρόσθετο χώρο παρέμενε. Ως αποτέλεσμα, πολλοί πρόσφυγες έκλεισαν τα μπαλκόνια τους, μετατρέποντας τα σε «δωμάτια». Ακόμα, οι χώροι ανάμεσα στις πολυκατοικίες δεν είχαν συγκεκριμένη διαμόρφωση – κι έτσι , οι κάτοικοι γρήγορα τους μετέτρεψαν σε αυλές. Πρόκειται άλλωστε για ένα χώρο συνολικής έκτασης 14.500 τ.μ., εκ των οποίων τα 10.000 τ.μ. είναι ελεύθερα. (Δαμιανάκος Δ. & Ν. Σιδωράκης, 2017) Ταυτόχρονα, όμως, οι περισσότερες από τις στεγασθείσες οικογένειες κατοικούν πια σε ορόφους, απομακρυνόμενες από τη δυνατότητα της αυλής. Η νέα αυτή μορφή συλλογικής στέγασης ορίζει και ένα νέο τρόπο ζωής: περισσότερη ησυχία και πιο περιορισμένες κινήσεις. Η έντονη αυτή αλλαγή αιτιολογεί σε μεγάλο βαθμό την οικειοποίηση των προαναφερθέντων ελεύθερων χώρων από τους πρόσφυγες και τη μετατροπή τους σε αυλές και κήπους. (Ντινιακός, 2007)

Αυτοσχέδια αυλή στο ισόγειο κάποιου απ’ τα κτίρια (φώτο: Βασίλης Νικολόπουλος)
Εκτιμάται ότι η πρωτοποριακή μοντερνιστική αρχιτεκτονική των προσφυγικών κτιρίων της δεκαετίας του ’30 θα φάνταζε ανοίκεια στους επικείμενους κατοίκους τους – τόσο λόγω των μορφών, όσο και της ζωής σε ένα περιβάλλον που υπονοούσε διαφορετικές κοινωνικές αλληλεπιδράσεις, από αυτές μιας «κλασικής» γειτονιάς. Βέβαια, πολύ γρήγορα, οι νέοι κάτοικοι προσάρμοσαν, όπως είδαμε, τους χώρους στις ανάγκες τους, αλλάζοντας, τελικά, την αρχική εντύπωση. (Γεωργακοπούλου, 2003)
Οι δημιουργοί και ο ρόλος του αρχιτέκτονα
Τα προσφυγικά της Λεωφόρου Αλεξάνδρας σχεδιάστηκαν από δύο λαμπρούς μηχανικούς της περιόδου.
Ο πολιτικός μηχανικός Δημήτρης Κυριακός (1881 – 1971) έζησε και εργάστηκε αρκετά στο Ηράκλειο Κρήτης. Εκεί, μάλιστα, σχεδίασε το Κτίριο της Τράπεζας της Ελλάδας και το Δημαρχείο. (Ντινιακός, 2007)
Ο αρχιτέκτονας Κίμων Λάσκαρις (1905-1978) επίσης εργάσθηκε στο σχεδιασμό αντίστοιχων κτιρίων – ασχολήθηκε, όμως, εκτεταμένα και με την προσφυγική κατοικία: To 1932, επιστρέφοντας από το εξωτερικό – όπου εργάσθηκε και στο γραφείο του Le Corbusier – ξεκινά να εργάζεται στο υπουργείο Πρόνοιας. Σε αυτό το πλαίσιο, εκπονεί μελέτες προσφυγικών κατοικιών, μεταξύ των οποίων στους συνοικισμούς της Κοκκινιάς, του Δουργουτίου και, φυσικά, στα προσφυγικά της Λεωφόρου Αλεξάνδρας. Συμμετείχε, ακόμα, σε προγράμματα ανέγερσης σχολικών κτιρίων και στη διαμόρφωση των κήπων του Βυζαντινού Μουσείου. (Γεωργακοπούλου, 2003)
Την περίοδο που συζητάμε, ο ρόλος του Αρχιτέκτονα στους κύκλους της ακαδημίας και της διανόησης «ανθίζει» – και αυτό αποτυπώνεται στην Αρχιτεκτονική της περιόδου. (Γεωργακοπούλου, 2002). Στο πλαίσιο του Bauhaus, για παράδειγμα, δίνεται μεγάλη έμφαση στη σύνδεση της αρχιτεκτονικής με την πόλη. Αυτό έχει ως αποτέλεσμα οι επόμενες γενιές να αντιλαμβάνονται την αρχιτεκτονική ως κοινωνική παροχή εκτός από εργαλείο οργάνωσης του χώρου. (Πετρίδου & Ζιρώ, 2015) Η εξέλιξη αυτή, όμως, αργεί να γίνει ορατή στο ευρύτερο κοινό: Χαρακτηριστικό παράδειγμα, το γεγονός ότι σε άρθρο των «Τεχνικών Χρονικών» της εποχής αναφέρονται αναλυτικά όλα τα ονόματα των εργολάβων που εμπλέκονται στις σχετικές κατασκευές, αλλά κανενός αρχιτέκτονα. Ο Λάσκαρις αποστέλλει σχετική επιστολή στο περιοδικό για να εκφράσει τη δυσαρέσκειά του. (Γεωργακοπούλου, 2002)
Οι πολυκατοικίες του Λάσκαρι στα προσφυγικά της Λεωφόρου Αλεξάνδρας ακολουθούν αυστηρά ωφελιμιστικό ύφος. Ωστόσο, ο Λάσκαρις, σε επόμενο στάδιο, θα στραφεί σε πιο «ελληνικά πρότυπα». (Φιλιππίδης, 1984)

H έπαυλη Ι. Περβενά στην Κηφισιά, σχεδιασμένη από τον Κ. Λάσκαρι και κατασκευασμένη το 1937. Κατά πως φαίνεται δυστυχώς δεν υπάρχει πιά.
Τα προσφυγικά της Λεωφόρου Αλεξάνδρας ως το 2000
Μετά το Δεύτερο Παγκόσμιο Πόλεμο, σιγά σιγά, οι κάτοικοι εγκαταλείπουν τις προσφυγικές πολυκατοικίες. (Ντινιακός, 2007) Εν τω μεταξύ, πολλές οικογένειες εξακολουθούσαν να μένουν σε παραπήγματα. Συνήθως, οι χώροι αυτοί εντοπίζονταν αρχικά γύρω από κτισμένες περιοχές. Ωστόσο, με την εξέλιξη της αστικοποίησης, οι παραγκουπόλεις αυτές βρέθηκαν σε πιο κεντρικά σημεία της πόλης.
Τέτοιοι χώροι υπήρχαν και γύρω από τα προσφυγικά της Λεωφόρου Αλεξάνδρας. Στα τέλη του ’50, τίθεται σε εφαρμογή ένα πρόγραμμα για την αποκατάσταση αυτών των οικογενειών – οι οποίες, ακόμα και τότε, έφταναν περίπου τις 10.000 (!) (ΤΕΕ, 1975) Η απομάκρυνση αυτών των οικογενειών, άφησε ελεύθερο χώρο, ο οποίος γρήγορα άρχισε να παίρνει νέα χαρακτηριστικά – «παρασέρνοντας» μαζί του και την τύχη των Προσφυγικών: Λαμβάνεται απόφαση για την κατασκευή του Δικαστικού Μεγάρου Αθηνών, καθώς και κοινόχρηστου χώρου παραπλεύρως (1967). Ο χώρος αυτός αντιστοιχούσε στο χώρο των 4 πρώτων πολυκατοικιών, μετατρεπόμενος ξαφνικά από οικοδομήσιμο σε κοινόχρηστο. (Ντινιακός, 2007)Το μέγαρο χτίσθηκε χωρίς να απαιτείται τελικά γκρέμισμα των πολυκατοικιών – το ΦΕΚ, ωστόσο, παρέμεινε. (διάφορες πηγές στο Πρωτονοταρίου, 2016)
Η απόφαση αυτή, μαζί με κάποιες τροποποιήσεις που ακολούθησαν, συνέβαλε στον να εγκαταλειφθούν σιγά σιγά τα προσφυγικά της Λεωφόρου Αλεξάνδρας: Οι κάτοικοι νιώθουν αβέβαιοι σχετικά με την τύχη των διαμερισμάτων τους και έτσι αποφεύγουν να προβούν σε εργασίες συντήρησης. (Ντινιακός, 2007)
Το 1986, η περιοχή των Κουντουριώτικων θεσμοθετείται ως περιοχή ανάπλασης. Η Λεωφόρος Αλεξάνδρας έχει ήδη διαμορφωθεί σε κεντρικό άξονα της πόλης. Τότε γίνονται και οι πρώτες απόπειρες- μη καρποφόρες- για ανταλλαγή των Προσφυγικών με άλλες κατοικίες, οι οποίες συνάντησαν την αντίσταση των κατοίκων. (διάφορες πηγές στο Πρωτονοταρίου, 2016)
Το 1994, η Δημόσια Επιχείρηση Πολεοδομίας και Στέγασης κάνει την εξής πρόταση: Να ανακαινισθούν 2 από τις πολυκατοικίες, ως πιλοτικό πρόγραμμα, και στη συνέχεια να ακολουθήσουν και οι υπόλοιπες – κάτι που, δυστυχώς, δε θα υλοποιηθεί. (Ντινιακός, 2007)
Τα προσφυγικά της Λεωφόρου Αλεξάνδρας από το 2000 μέχρι και σήμερα
Από το 2000, ξεκινά αγώνας ώστε να αποφευχθεί η κατεδάφιση των κτιρίων και να χαρακτηριστούν διατηρητέα (Ντινιακός, 2007): Μεταξύ 2000-2002, η Κτηματική Εταιρεία του Δημοσίου αποκτά 137 – απ’ τα 228- διαμερίσματα. Οι κάτοικοι καλούνται να μεταβιβάσουν «οικειοθελώς» προς το Δημόσιο τυχόν εμπράγματα δικαιώματά τους, αλλιώς απειλούνται με αναγκαστική απαλλοτρίωση – όμως, αντιστέκονται.

Τα σχέδια προέβλεπαν κατεδάφιση 6 κτηρίων – ακυρώθηκαν, ωστόσο, από το ΣτΕ, χάρη στις προσφυγές κατοίκων των Αμπελοκήπων και της Αρχιτεκτονικής Σχολής. Ταυτόχρονα, το Υπουργείο Πολιτισμού χαρακτηρίζει (μόνο) 2 από τις 8 πολυκατοικίες διατηρητέες. Αυτό δεν τερματίζει τη «διαμάχη» κατοίκων και Δημοσίου, που συνεχίζει να ζητά επιτακτικά τη μεταβίβαση κατοικιών.
Το 2009 επικυρώνεται, από το Υπουργείο Πολιτισμού, η απόφαση του Κεντρικού Αρχαιολογικού Συμβουλίου για χαρακτηρισμό ολόκληρου του συγκροτήματος ως «μνημείο», καθώς «τα κτίρια έχουν ιδιαίτερη κοινωνική και ιστορική σημασία». Σημαντικό ρόλο έπαιξε και εδώ το ΣτΕ – ύστερα από δεκάδες παρεμβάσεις ειδικών, καθηγητών, πολεοδόμων, δικηγόρων, πολιτών. Την απόφαση αυτή, ακολουθεί εισήγηση του ΤΕΕ και του Δήμου Αθηναίων για ανταλλαγή οικοπέδου του Επιμελητηρίου με τμήμα των Προσφυγικών. Στο τμήμα αυτό, προτείνεται μια σειρά από χρήσεις ποικίλων ειδών, όπως και η συνέχιση της κατοίκησης διαμερισμάτων ιδιωτών. Η πρόταση δε γίνεται δεκτή από την κυβέρνηση.
Το 2014, τα 137 διαμερίσματα παραχωρούνται στο Ταμείο Αξιοποίησης Ιδιωτικής Περιουσίας του Δημοσίου. Εν τω μεταξύ, τμήμα των Προσφυγικών λειτουργεί ως κατάληψη στέγης από το 2003. Αν και έχουν προηγηθεί περίοδοι εγκληματικότητας, από το 2009, τμήμα του κατειλημμένου συγκροτήματος λαμβάνει τη μορφή πιο οργανωμένης στεγαστικής κατάληψης, δημιουργώντας μια συνθήκη πλησιέστερη σε αυτή της αυτό-οργανωμένη συλλογικής κατοίκησης και ενεργητικής γειτονιάς. (Πρωτονοταρίου, 2016)
Τελικά, τέλη του 2020, υπογράφεται μνημόνιο για διπλή ανάπλαση στη λεωφόρο Αλεξάνδρας και στο Βοτανικό. Μεταξύ άλλων, η συμφωνία αυτή προβλέπει ανάπλαση για τα προσφυγικά της λεωφόρου Αλεξάνδρας, καθώς και σύνδεσή τους -μέσα από ελεύθερους υφιστάμενους χώρους- με τον Λυκαβηττό και με το Πάρκο Ελευθερίας. (www.cityofathens.gr)
Μνήμη και σχέση με το χώρο
Για να κατανοήσουμε περισσότερο τον αγώνα, ώστε τα προσφυγικά της Λεωφόρου Αλεξάνδρας να ανακηρυχθούν «μνημείο» -όπως και τελικά έγινε- έχει σημασία να δούμε πολύ συνοπτικά πως συγκροτείται η έννοια της μνήμης σε σχέση με το χώρο.

Φωτογραφία των προσφυγικών λίγο μετά την κατασκευή τους
Ο άνθρωπος σχετίζεται με το χώρο πέρα από άμεσα, πολύ περισσότερο και συμβολικά. Ο χώρος και η δράση του ανθρώπου εντός του νοηματοδοτούνται με τη μεσολάβηση συμβολικών μηχανισμών παραγωγής νοήματος. Για παράδειγμα, ένας τέτοιος μηχανισμός είναι αυτός της μεταφοράς: Μέσα από τη σύγκριση της εικόνας ενός χώρου με κάποια άλλη «ανάλογη», μεταβιβάζεται αξία από τη μία εικόνα στην άλλη. (Σταυρίδης, 1990)
Έτσι και η έννοια της μνήμης παίζει κρίσιμο ρόλο στο πως αντιλαμβάνεται κάποιος/α το χώρο. Στο δεύτερο μισό του 20ου αιώνα, η έννοια της μνήμης αρχίζει να απασχολεί πολύ – γεγονός που δε σχετίζεται αποκλειστικά με τα ζητήματα της μετανάστευσης και της προσφυγιάς. (Ντινιάκος, 2007) Ίσως, γιατί σε μια προ-νεωτερική κοινωνία μπορεί κανείς να βιώσει τη μνήμη παντού. Αντίθετα, κατά το νεωτερισμό, όπου εμφανίζεται πρώτη φορά τόσο αισθητά απόσταση ανάμεσα στο παρελθόν και στις προσδοκίες για το μέλλον, αρχίζει και να δίνεται μεγαλύτερη έμφαση στην έννοια του μνημείου. (Zemon Davis N. & Starn R, 1989)
Το μνημείο αφορά στο άτομο, αλλά και στο σύνολο. Το υποκείμενο δεν είναι αποκομμένο – αλλά θυμάται (και) σε σχέση με την «προοπτική της ομάδας». (Παραδέλλης, 1999) Η συλλογική μνήμη συγκροτείται μέσα από διάφορες διαδικασίες. Η μεσολάβηση θεσμών, όπως είναι το μνημείο, συμβάλουν στην οργάνωση της ως «γνώση». Τα μνημεία αναπαριστούν οπτικά το παρελθόν, ενώ οι ιστορικές τους χρήσεις – όπως οι επισκέψεις, οι τελετές ή και συγκρούσεις που προκύπτουν κατά τη διάρκεια τους – επιδρούν στα νοήματα που αυτά φέρουν. (Samuel, 1994) Στο μνημείο, ο χώρος αντιπροσωπεύει έναν χρόνο: αυτό της εκτύλιξης ενός γεγονότος που αξίζει κανείς να θυμάται. (Ντινιακός, 2007)
Μνημείο και Πολιτιστική κληρονομιά
Πλέον, η έννοια του μνημείου είναι αρκετά διευρυμένη. Στην έννοια της παγκόσμιας πολιτιστικής κληρονομιάς εμπίπτουν μεμονωμένα αντικείμενα, οικιστικά σύνολα αλλά και τοπία που έχουν προκύψει ως συνδυασμός έργου φύσης ανθρώπου. Μάλιστα, πλέον, υπάρχει και η κατηγορία της παγκόσμιας φυσικής κληρονομιάς. (Ντινιακός, 2007) Όταν ερχόμαστε στο ζήτημα της αρχιτεκτονικής κληρονομιάς, μπορούμε να μιλάμε για μνημεία, αρχιτεκτονικά σύνολα και τόπους– με την έννοια των έργων ανθρώπου-φύσης, εν μέρει κτισμένων. (Παπακωνσταντίνου, 1999)
Βέβαια, το τι θεωρεί μια κοινωνία ότι έχει νόημα να θυμάται –και άρα τι θεωρεί μνημείο- σχετίζεται με διάφορους παράγοντες, μεταξύ των οποίων είναι και το τι θεωρεί, τελικά, το σχετικό σκέλος του εκάστοτε κρατικού μηχανισμού ό,τι «αξίζει». Σε άλλες Ευρωπαϊκές χώρες δίνεται μεγάλη σημασία στην προστασία των μοντέρνων κτηρίων. Στην Ελλάδα, αυτό δε συμβαίνει στον ίδιο βαθμό. Προκειμένου να ακολουθηθεί αυτός ο βηματισμός, είναι σημαντική η αναγνώριση της αξίας του μοντέρνου αρχιτεκτονικού κινήματος, καθώς και η διεύρυνση των προτύπων για το τι είναι μνημείο. (Ντινιάκος, 2007) Ο χαρακτηρισμός των Προσφυγικών ως τέτοιου, το 2009, δείχνει διεύρυνση της αντίληψης για την έννοια του μνημείου. Δείχνει, όμως, και τη σημασία που έχει να γίνονται οι ίδιοι οι κάτοικοι της πόλης επίμονοι φορείς ενός τέτοιου αιτήματος.
Τα πολλά επίπεδα των προσφυγικών
Τα προσφυγικά της Λεωφόρου Αλεξάνδρας είναι τελικά πολλά πράγματα μαζί.
Είναι σύμβολο ιστορικής μνήμης και μνημείο σύγχρονης αρχιτεκτονικής κληρονομιάς.
Είναι πεδίο διεκδίκησης για ένα ζωντανό κέντρο πόλης, που τιμά το παρελθόν και μεριμνά για το ευ ζην του παρόντος. Μια υπόθεση που μας αφορά όλους, γιατί «μια πόλη χωρίς ιστορία είναι μια πόλη όχι βιώσιμη» – σύμφωνα και με την καθηγήτρια στη σχολή Αρχιτεκτόνων ΕΜΠ Άννη Βρυχέα.
Είναι στέγη για κατατρεγμένους του προηγούμενου αιώνα που γίνεται πατρίδα, σπιτικό για τους απογόνους τους: «Είμαστε ριζωμένοι εδώ πέρα, έτσι και φύγουμε θα πεθάνουμε» μας λέει μια κάτοικος, που ζει στα προσφυγικά από τότε που γεννήθηκε. «Είμαι 65 χρονών κι έχω μεγαλώσει εδώ. Δεν καταλαβαίνω πως θα με πάρουν από εδώ να με πάνε κάπου αλλού πάλι πρόσφυγα», λέει άλλος κάτοικος, ο οποίος επίσης εξαίρει την υψηλή ποιότητα ζωής που προσφέρει η κατοίκηση στις πολυκατοικίες αυτές και που κρατά μέχρι και πάνω από 80 χρόνια από την ανέγερσή τους.
Όπως αναφέρει χαρακτηριστικά για την ταράτσα του, ο καθηγητής Αρχιτεκτονικής ΕΜΠ κ. Ευταξιόπουλος που γεννήθηκε στα προσφυγικά και τα τελευταία χρόνια έχει επιστρέψει πάλι εκεί, είναι «στο κέντρο της Αθήνας, μια μικρή όαση». (Κωτσιαβράς, 2009)

Τα προσφυγικά γεμάτα ζωή (φώτο: Νίκος Πηλός)
Βιβλιογραφία
Δαμιανάκος Δ. & Σιδωράκης Ν. ( Οκτώβριος 2017), Αστική αναγέννηση των ιστορικών συνοικισμών προσφύγων στην Αθήνα. Η περίπτωση της Λεωφόρου Αλεξάνδρας, Συνέδριο Τμήματος Αττικής Συλλόγου Αρχιτεκτόνων (ΣΑΔΑΣ-ΠΕΑ): ΑΤΤΙΚΗ ΣΕ ΚΡΙΣΗ
Κωνσταντοπούλου Μάρη (1985), «Η οργανωμένη δόμηση», Υπουργείο Πολιτισμού, Η Αθήνα στον 20ο αιώνα. 1900-1940: Αθήνα ελληνική πρωτεύουσα, Αθήνα Πολιτιστική Πρωτεύουσα της Ευρώπης
Κωτσιαβράς Κ. (σκηνοθέτης Ντοκιμαντέρ) (2009), Στην άκρη των χειλιών το ναι
Ντινιακός Ιωάννης (2007), Αστικός χώρος και ιστορική μνήμη: τα «Προσφυγικά» της Λεωφόρου Αλεξάνδρας, Διπλωματική εργασία, Εθνικό Κέντρο Δημόσιας Διοίκησης
Παπακωνσταντίνου Α. (1999), «Η Σύμβαση της Γρανάδας για την προστασία της αρχιτεκτονικής κληρονομιάς και το Σύνταγμα», Νόμος και Φύση
Παπανδρέου Ε. (2011), Διπλωματική Εργασία: Αποκλίσεις Χρήσεων. H μεταβολή του αρχιτεκτονικού προγράμματος και της δομής στα προσφυγικά της Λεωφόρου Αλεξάνδρας, Μεταπτυχιακό Πρόγραμμα «Αρχιτεκτονικός Σχεδιασμός – Συμβιώσεις», Τμήμα Αρχιτεκτόνων Μηχανικών, Πανεπιστήμιο Θεσσαλίας, Βόλος
Παραδέλλης Θ. (1999), «Ανθρωπολογία της Μνήμης» στο Μπενβενίστε Ρίκα & Παραδέλλης Θ., Διαδρομές και Τόποι της Μνήμης, Αλεξάνδρεια
Πετρίδου Β. & Ζιρώ Ο. (2015), Τέχνες & Αρχιτεκτονική: Από την Αναγέννηση εώς τον 21ο αιώνα, Αθήνα, ΣΕΑΒ
Πρωτονοταρίου Κ. (2016), «Κενά κτίρια και άστεγος πληθυσμός: Η περίπτωση της Κατάληψης των Προσφυγικών της Λεωφόρου Αλεξάνδρας», Μεταπτυχιακή Εργασία στο πλαίσιο του προγράμματος «Πολεοδομία-Χωροταξία» της Αρχιτεκτονικής ΕΜΠ, Αθήνα
Σταυρίδης Σ. (1990), Η Συμβολική Σχέση με το Χώρο: Πως οι κοινωνικές αξίες διαμορφώνουν και ερμηνεύουν το χώρο, Κάλβος, Αθήνα
ΤΕΕ (1975), Η κατοικία στην Ελλάδα: Κρατική δραστηριότης, ΤΕΕ, Αθήνα
Φιλιππίδης, Δ. (1984), Νεοελληνική αρχιτεκτονική, Μέλισσα, Αθήνα
Ψηφιακή Σελίδα της Αρχαιολογίας της Πόλης των Αθηνών, Προσφυγικές Πολυκατοικίες, archaeologia.eie.gr
Ψηφιακή Σελίδα του Δήμου Αθηναίων, www.cityofathens.gr
Samuel R. (1994), Theaters of Memory, Λονδίνο-Νέα Υόρκη, Verso
Zemon Davis N. & Starn R. (1989), “Introduction”, Representation 26, Spring
Πηγή: artic.gr


